



BENSHEIM-HOCHSTÄDTEN
Attraktives Abrissgrundstück in ruhiger naturnaher
Waldrandlage
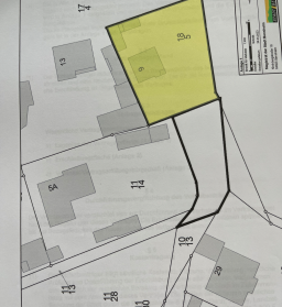
Grundstück 745 m²
Objektbeschreibung:
Zum Verkauf steht ein Grundstück mit 745 m² in ruhiger naturnaher Lage in Bensheim-Hochstädten, unmittelbar in der Nähe eines Neubaugebietes. Die Lage bietet eine exklusive Wohnatmosphäre. Kein direkter Nachbar vor dem Haus und sowohl links als auch rechts freier Blick, ideal für individuelle Architektenpläne. Eigene Zufahrt zum Grundstück vorhanden. Bebauung gemäß §34 mit einer voraussichtlichen erreichbaren Wohnfläche von insgesamt ca. 300 qm. Derzeit ist das Grundstück bebaut mit einem ca. 60 m² großen, alten Holzhaus, das vom Käufer abgerissen werden muss. Bauliche Voraussetzungen und Bauvorbescheid ist vorhanden bzw. können gemäß Bauvorschriften angepasst genutzt werden.
Lage:
Unmittelbare Nähe zum Wald, ruhige Wohnlage, ideal für naturverbundene Lebensstile. In der Nähe liegt ein Neubaugebiet in Bensheim-Hochstädten, was Perspektiven für zukünftige Infrastrukturentwicklung bietet. Einkaufsmöglichkeiten, Schulen und öffentliche Einrichtungen erreichen Sie in 5 Minuten ca. 3 Km bis nach Bensheim-Auerbach.
Sonstiges:
Aktuell befindet sich auf dem Grundstück ein ca. 60 m² großes, altes Holzhaus, welches vom Käufer abgerissen werden muss. Das Baufenster für einen Neubau beträgt ca. 120 m² auf einer Ebene. Bebaut werden darf das Grundstück mit 2 Vollgeschossen plus Dach, insgesamt ca. 300 m² Wohnfläche. Baufenster ca. 9x13 Die Zufahrt zum Grundstück muss noch erschlossen werden, hierfür gelten zum Neubau neue rechtliche Vorgaben. Ein Erschließungsvertragsentwurf mit der Stadt Bensheim liegt bereits vor und kann auf den neuen Eigentümer übertragen werden. Die Kosten für die Zufahrt trägt der Käufer. Die Fertigstellung der Zufahrt erfolgt erst mit dem Abschluss des Neubaus. Es liegt ein Bauvorbescheid vor, der noch bis 2027 gültig ist. Bei weiteren Fragen, stehen wir Ihnen gerne zur Verfügung.
